
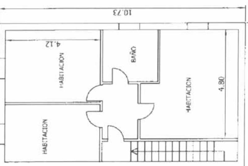
Obergeschoss Grundriss
Wohnbereich Obergeschoss: 3 Schlafzimmer und 1 Bad mit Badewanne.
Treppe zum Obergeschoss
Treppe aus Ulldecona-Marmor


Büro (Schlafzimmer)
Schlafzimmer
mit Blick nach Süden


Schlafzimmer
mit Blick auf Montsiagebirge (Osten)
Bad


Obergeschoss Grundriss
Wohnbereich Obergeschoss: 3 Schlafzimmer und 1 Bad mit Badewanne.
Treppe zum Obergeschoss
Treppe aus Ulldecona-Marmor


Büro (Schlafzimmer)
Schlafzimmer
mit Blick nach Süden


Schlafzimmer
mit Blick auf Montsiagebirge (Osten)
Bad
