
Erdgeschoss Grundriss
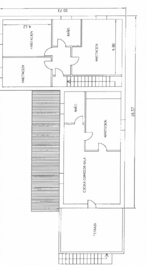
Wohnbereich Erdgeschoss: Esszimmer, offene Küche, Bad, Wohnzimmer und überdachte Terrasse (Porche).
Werkstatt und Wirtschaftsraum mit Waschbecken.

Obergeschoss Grundriss
Wohnbereich Obergeschoss: 3 Schlafzimmer und 1 Bad mit Badewanne.
Separates Apartment mit eigenem Zugang und Terrasse. Offene Küche mit Wohn- und Essbereich, 1 Schlafzimmer, 1 Bad mit Dusche.