
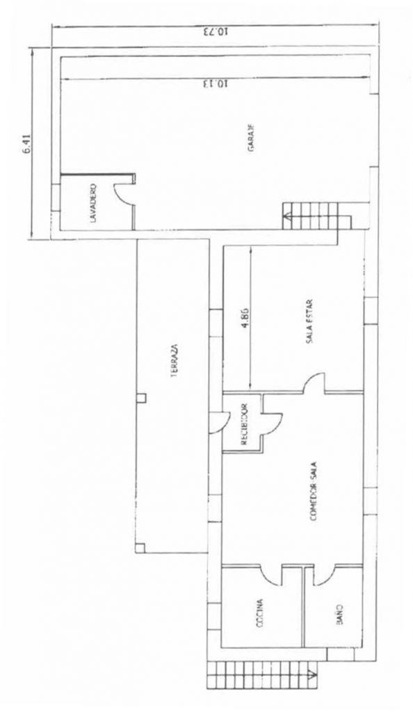
Erdgeschoss Grundriss
Wohnbereich Erdgeschoss: Esszimmer, offene Küche, Bad, Wohnzimmer und überdachte Terrasse (Porche).
Werkstatt und Wirtschaftsraum mit Waschbecken.
Bad im Erdgeschoss mit Badewanne


Erdgeschoss Grundriss
Wohnbereich Erdgeschoss: Esszimmer, offene Küche, Bad, Wohnzimmer und überdachte Terrasse (Porche).
Werkstatt und Wirtschaftsraum mit Waschbecken.
Bad im Erdgeschoss mit Badewanne
