
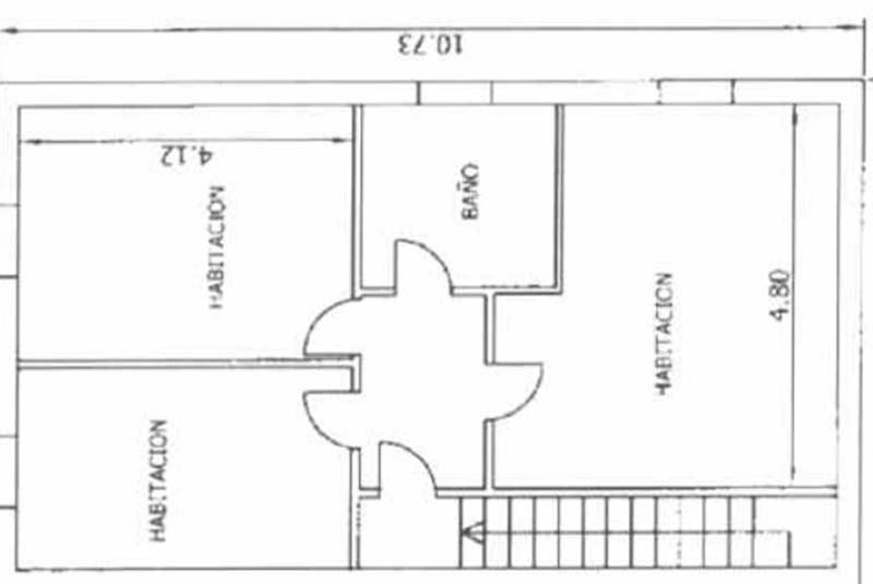
Upper floor plan
Living area upper floor: 3 bedrooms and 1 bathroom.
Stairs to the upper floor
Stairs in Ulldecona marble


Office (bedroom)
Bedroom
with view to the south side

Bathroom upper floor
with bathtub


Bedroom
with view to Montsia mountains (east)